色色吧av,成人小黄书免费网站入口,亚洲偷偷,精品五区,无码黄网,亚洲av影音

當前位置: 首頁 > 熱裝樓盤 > 戶型分析 > 榮盛御府415平米歐式風格別墅裝修戶型解析
榮盛御府415平米歐式風格別墅裝修戶型解析
來源:金舍裝飾 瀏覽: 更新時間:2022-09-23 10:46:39
項目地址:榮盛御府
裝修面積:415平米
裝修風格:歐式風格
設計師:楊東霖

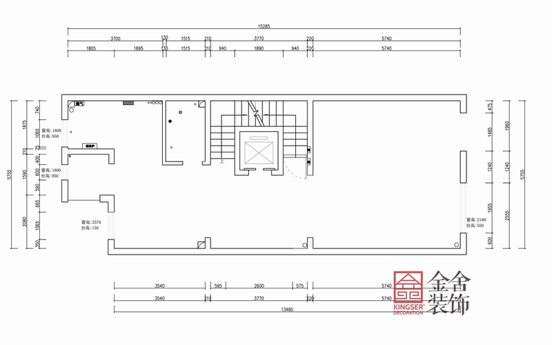
榮盛御府415平米歐式風格別墅戶型原始平面圖
榮盛御府415平米歐式風格別墅戶型原始平面圖
 
榮盛御府415平米歐式風格別墅戶型平面布置圖
榮盛御府415平米歐式風格別墅戶型平面布置圖

此案為石家莊裝修設計-榮盛御府別墅裝修戶型解析
戶型為四層別墅,
【地下一層】
陽光地下空間,南北雙向采光窗,拋卻繁華喧囂,此時此地惟有清風陽光相伴;闊綽獨立空間,影音室、健身房、儲酒室隨心配置,讓生活呈遞多樣情趣。
【地上首層】
贈送南北雙花園,優(yōu)雅庭院環(huán)繞,描繪一幅純粹英倫的縮影油畫;
明廚明衛(wèi),中西雙廚分離,亮室之內隨心烹煮,更享家庭幸福滋味;
南北通透,餐廳挑空設計,杯觥交錯之間,彰顯雍容不凡氣度;
【地上二層】
完美三居室,聚合家人幸福情懷,勾勒全家幸福畫卷;
餐廳挑空,家人優(yōu)雅齊聚共飲,盡展幸福寫意人生;
盛納陽光露臺,蔓延幸福空間,為室內體驗添加細膩層次和豐富美感。
【地上三層】
豪華戶型布局,靜謐私居典范,春華秋實,靜攬四季人生;優(yōu)雅主臥配備衣帽間、陽光房、洗漱間,實現奢華之上的實用主義;超越想象的層高距離。
【地上四層】
寬敞的天臺一覽絕美的高出風景。

服務設計師

擅長風格:現代簡約 輕奢風格

擅長戶型:三居 四居

設計理念:做最純粹的設計,享最舒適的生活。

預約設計師

裝修無憂 免費報價

更多 >>

相關案例

榮盛御府500平米法式風格裝修實景

風格:混搭風格 戶型:別墅 面積:500㎡

榮盛御府415平米輕法極簡裝修案例

風格:其他風格 戶型:別墅 面積:415㎡

榮盛御府186平米新中式風格裝修案例

風格:中式風格 戶型:平層 面積:186㎡

榮盛御府別墅裝修395㎡美式效果圖

風格:美式風格 戶型:別墅 面積:395㎡

家裝資訊

2026-02-28 別墅裝修避坑指南,裝對不裝貴
2026-02-24 大平層與別墅裝修的四大適配風格,質感與舒適兼具
2025-12-26 冬季裝修避坑指南:石家莊裝修公司教你省心裝新家
2025-08-20 別墅廚房裝修:避開這些坑,做飯更輕松?
2025-07-06 石家莊裝修公司揭秘:法式風格吊頂的選擇與裝修要點
2025-06-27 石家莊別墅裝修小課堂:歐式家具清潔保養(yǎng)全攻略
快速報價

金舍裝飾 只為別墅而生

預約設計師